Gyilkos tó nyaraló vagy lakó faház, gerendaház

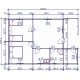
Alapozási méret: 1054 x 687 cm

Alapfelület: 72.41 m2

Anyagvastagság: 6 cm

Bővebb leírás

0 Ft‎ Áfával

11 hasonló termék:

Gyilkos-tó nyaraló vagy lakó faház, gerendaház

Műszaki adatok

Alapozási méret: 1054 x 687 cm = 72.41 m2
Oldalfal magasság: 234 cm
Gerincmagasság: 362 cm

Falak szerkezete
Szimpla változat: 6 cm-es dupla nútféderes gerenda

Szigetelhető változat: 6 cm-es dupla nútféderes gerenda – páraáteresztő fólia – távolságtartó stafli, közte hőszigetelő kőzetgyapot – párazáró fólia – 20 mm-es belső lambéria burkolat

Tető szerkezete
Szimpla változat: 10 x 15 cm hosszanti gerendák; 20 mm-es lambéria burkolat - zsindely alátétlemez - bitumenes zsindely

Szigetelhető változat: 10 x 15 cm hosszanti gerendák – 20 mm-es lambéria burkolat- párazáró fólia – távolságtartó stafli, közte hőszigetelő kőzetgyapot – zsindelydeszkázat – zsindely alátétlemez – bitumenes zsindely

Padló szerkezete
40 mm-es párnafák, közte polisztirol hőszigetelő - 20 mm-es hajópadló

külső nyílászárók
Szimpla: tömör masszív fenyő; zsalutáblával;

Szigetelt: a külső nyílászárók 68 mm-es, Eurofalc profilú, rétegragasztott fenyőből készülnek, hőszigetelt üveggel

belső nyílászárók
tömör masszív fenyő

A házakon bármilyen módosítás kérhető vagy vállaljuk teljesen egyedi gerendaházak építését is.

Részletes árajánlatért kérem írjon az info@fabatkabutor.hu címre